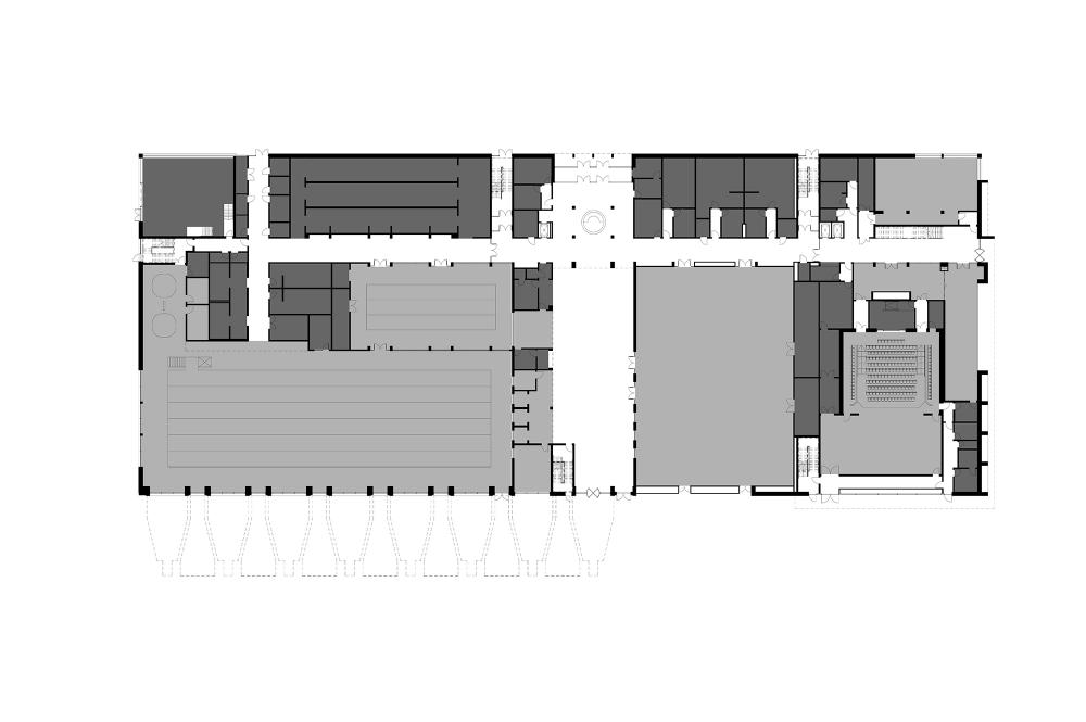
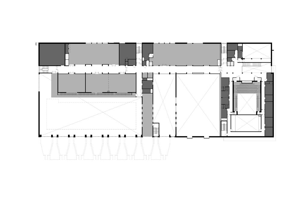
Stallan-Brand has submitted planning for a new Leisure Centre, Theatre and Library at Eastwood Park, seeking a transformational impact; optimising Eastwood Park as a major asset for the community and enhancing the civic identity of the Park, the quality of landscape and heritage, and blend of activities.
New and improved facilities include a larger pool to meet demands such as more flexibility for lessons, activity classes, public swimming and training and a higher quality theatre space. It will also include many other improvements including fitness studios, a large sports hall, gym, gymnastic space, library, cafe, studio theatre, rehearsal space and theatre bar.









