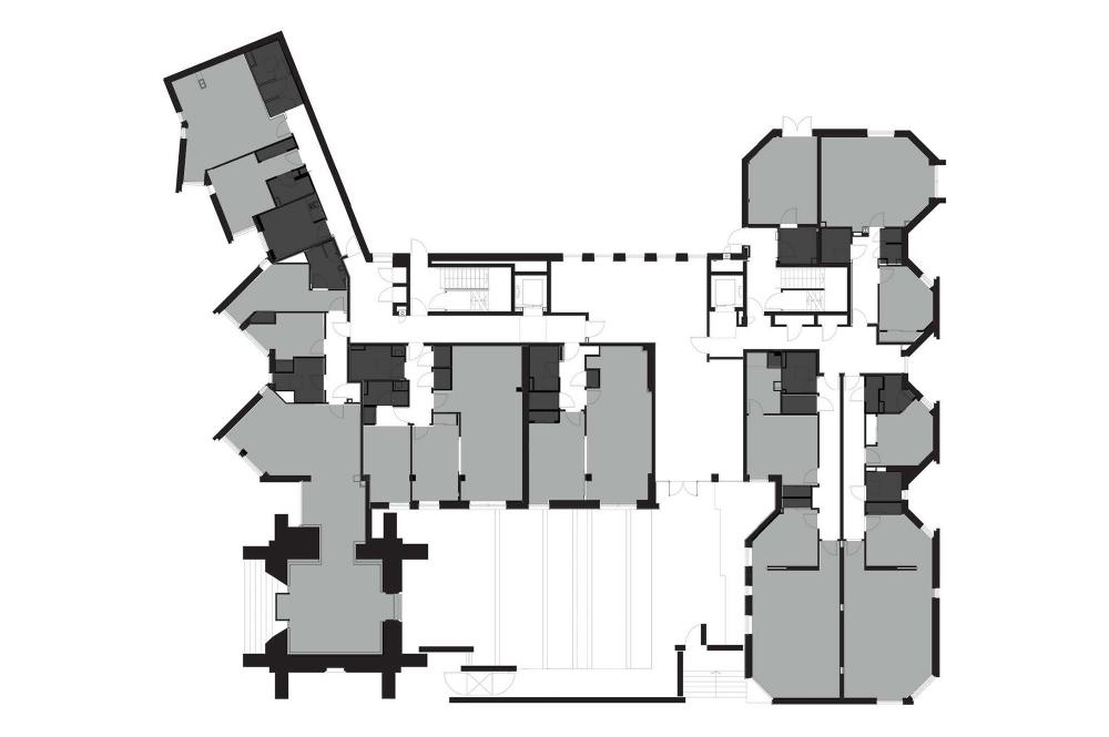
One of Glasgow’s most prominent landmarks, the Grade B listed tower of the former park church in the West End of Glasgow, is part of the redevelopment that comprises 50 high-end apartments. The development involved transforming the existing 1960’s office building that replaced the original church reusing its structural concrete frame and floor slabs to create a new residential building. The listed tower element has been integrated into the apartment layouts providing unique living accommodation in one of the city’s best addresses.






