Over a period of 15 years, we have assisted the Tron Theatre in maintaining a creative environment that has facilitated the continual promotion of exciting theatre and educational programmes within a complex of historic and new architecture.
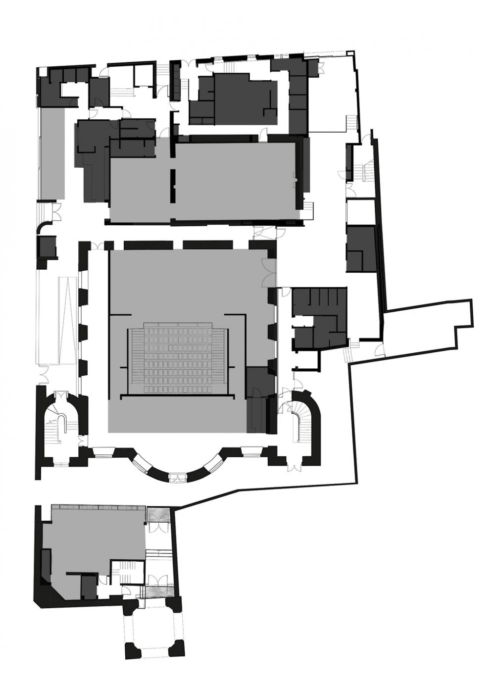
The theatre is set in the heart of Glasgow’s Merchant City within a collection of buildings, some of which are Grade A Listed and date from 1795. The initial works undertaking were to demolish a series of outbuildings and the poor quality bar area and replace them with a ration new complex housing a bar, restaurant, dressing rooms, studio theatre, and an administration wing which completed the urban block. A redundant space behind the neo-Baroque Burnet Wall became the box office, foyer, and exhibition space.







